SoftRide SF500 LuLa™ / GT Accessibility / Guide technique et dessins
|
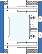
SF501 LuLa - Entrée avant
|
|||
![]() |
Capacité |
1400 lbs |
|
|
Trajet maximum |
25'-0" (7620 mm) |
||
| Surplomb minimum | 123" (3124 mm) Existing building 132" (3353 mm) New building |
||
| Vitesse | 30 fpm (0.15 m/s) |
||
| Puits |
69" W x 79" D |
||
| Plate-forme |
44 1/2" W x 68 3/4" D
(1130 x 1746 mm) |
||
| Intérieur de la cabine |
42" W x 60" D
(1067 x 1524 mm) |
||
| Hauteur libre en cabine | 80" (2032 mm) |
||
| Ouverture libre |
36" W x 84 H
(914 x 2134 mm) |
||
|
Profondeur de la fosse
|
15"
(381 mm) |
||
|
Dessins Autocad |
• Travaux faits par d'autres (Document Microsoft Word) |
||
|
SF502 LuLa - Entrées avant et arrière
|
|||
![]() |
Capacité | 1400 lbs (635 Kg) |
|
| Trajet maximum | 25'-0" (7620 mm) |
||
| Surplomb minimum | 123" (3124 mm) Existing building 132" (3353 mm) New building |
||
| Vitesse | 30 fpm (0.15 m/s) |
||
| Puits |
69" W x 86 1/2" D |
||
| Plate-forme |
46" W x 71" D
(1168 x 1803 mm) |
||
| Intérieur de la cabine |
42" W x 56" D
(1067 x 1423 mm) |
||
| Hauteur libre en cabine |
80" (2032 mm) |
||
| Ouverture libre |
36" W x 84 H
(914 x 2134 mm) |
||
|
Profondeur de la fosse
|
15"
(381 mm) |
||
|
Dessins Autocad |
• Travaux faits par d'autres (Document Microsoft Word) |
||


