SoftRide SF100R™ / GT Accessibility / Planning Guide & drawings
|
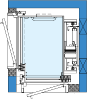
SF101R - Front opening
|
|||
![]() |
Capacity | 750 lbs (340 Kg) |
|
| Maximum travel | Up to 50 feet (15.25 m) |
||
| Minimum overhead | 100" (2540 mm) |
||
| Speed | 40 fpm (0.2 m/s) |
||
| Hoistway |
54" W x 54 " D |
||
| Platform |
37 7/8" W x 50 7/16" D
(962 x 1282 mm) |
||
| Inside cab |
36 1/8" W x 47" D
(918 x 1194 mm) |
||
| Inside cab clear height | 80" (2032 mm) |
||
| Clear opening |
33 1/4" W x 79 5/8 H
(845 x 2022 mm) |
||
|
Pit depth
|
8"
(203 mm) |
||
|
Autocad Drawings |
|
||
|
SF102R - Front & rear opening
|
|||
![]() |
Capacity | 750 lbs (340 Kg) |
|
| Maximum travel | Up to 50 feet (15.25 m) |
||
| Minimum overhead | 100" (2540 mm) |
||
| Speed | 40 fpm (0.2 m/s) |
||
| Hoistway |
54" W x 54" D |
||
| Platform |
37 7/8" W x 50 1/2" D
(962 x 1282 mm) |
||
| Inside cab |
36 1/8" W x 43" D
(918 x 1092 mm) |
||
| Inside cab clear height | 80" (2032 mm) |
||
| Clear opening |
33 1/4" W x 79 5/8 H
(845 x 2022 mm) |
||
|
Pit depth
|
8"
(203 mm) |
||
|
Autocad Drawings |
|
||
|
SF103R - Front & side opening
|
|||
![]() |
Capacity | 750 lbs (340 Kg) |
|
| Maximum travel | Up to 50 feet (15.25 m) |
||
| Minimum overhead | 100" (2540 mm) |
||
| Speed | 40 fpm (0.2 m/s) |
||
| Hoistway |
49 1/2" W x 59 3/4" D |
||
| Platform |
35 3/4" W x 51 3/4" D
(908 x 1314 mm) |
||
| Inside cab |
31 7/8" W x 47 3/4" D
(809 x 1213 mm) |
||
| Inside cab clear height | 80" (2032 mm) |
||
| Clear opening |
33 1/4" W x 79 5/8 H
(845 x 2022 mm) |
||
|
Pit depth
|
8"
(203 mm) |
||
|
Autocad Drawings |
|
||
|
SF104R - Side opening
|
|||
![]() |
Capacity | 750 lbs (340 Kg) |
|
| Maximum travel | Up to 50 feet (15.25 m) |
||
| Minimum overhead | 100" (2540 mm) |
||
| Speed | 40 fpm (0.2 m/s) |
||
| Hoistway |
56" W x 49 1/2" D |
||
| Platform |
50 1/2" W x 35 3/4" D
(1283 x 908 mm) |
||
| Inside cab |
48 3/4" W x 31 3/4" D
(1238 x 806 mm) |
||
| Inside cab clear height | 80" (2032 mm) |
||
| Clear opening |
33 1/4" W x 79 5/8 H
(845 x 2022 mm) |
||
|
Pit depth
|
8"
(203 mm) |
||
|
Autocad Drawings |
|
||




