
Configurations d'entrée : |
|
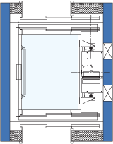
![]() |
Puits | 69" W x 79" D |
|
| Plate-forme | 44 1/2" W x 68 3/4" D (1168 x 1765 mm) |
||
| Intérieur de la cabine | 42" W x 60" D (1067 x 1524 mm) |
||
| Hauteur libre en cabine | 80" (2032 mm) |
||
| Ouverture libre | 36" W x 84 H (914 x 2134 mm) |
||
Profondeur de la fosse |
15" (381 mm) |
||
|
Dessins Autocad SF500 Commercial |
Travaux faits par d'autres (Microsoft Word Documents): |
|
| Dessins PDF* SF500 LU/LA • Plan et élévation SF500 Commercial |
*Pour visualiser ces documents, vous devez posséder Adobe Reader. Ce logiciel est gratuit et peut être téléchargé en cliquant sur l'icône suivante: |
||
![]() |
Puits | 69" W x 86 1/2" D |
|
| Plate-forme | 44 1/2" W x 71" D (1130 x 1803 mm) |
||
| Intérieur de la cabine | 42" W x 56" D (1067 x 1423 mm) |
||
| Hauteur libre en cabine | 80" (2032 mm) |
||
| Ouverture libre | 36" W x 84 H (914 x 2134 mm) |
||
Profondeur de la fosse |
15" (381 mm) |
||
|
Dessins Autocad SF500 LU/LA • Plan et élévation SF500 Commercial |
Travaux faits par d'autres (Microsoft Word Documents): |
|
| Dessins PDF* SF500 LU/LA • Plan et élévation SF500 Commercial |
*Pour visualiser ces documents, vous devez posséder Adobe Reader. Ce logiciel est gratuit et peut être téléchargé en cliquant sur l'icône suivante: |
||
| Information complémentaire |
|
• Brochure • Spécifications SF500R: (Pdf) (Word) SF500C: (Pdf) (Word) SF500LULA: (Pdf) (Word) • Poids de cabine • Mélamines (Standard) • Stratifiés (Option) • Couleurs des entrées • Garantie de 1 an • Demande de soumission (PDF) (MS Excel) |
GTAccessibility.com est un site de GLOBAL TARDIF Groupe manufacturier d'ascenseurs
Global-Tardif se réserve le droit de discontinuer des modèles ou options à tout moment ou de changer des spécifications,
termes et conditions de garantie, materiaux, équipements ou prix sans préavis et sans obligation de sa part.
Pour tout commentaire sur le site : webmaster@glogaltardif.com
Copyright © 2006 Global Tardif Groupe manufacturier d'ascenseurs